Via Guerrazzi 42r
16146 Genova
P.IVA 03707410100

+39 347 5760297
info@angelagambardella.it

V.I.A e progetto di ripristino ambientale

HomeInfrastrutture e paesaggioV.I.A e progetto di ripristino ambientale

V.I.A e progetto di ripristino ambientale

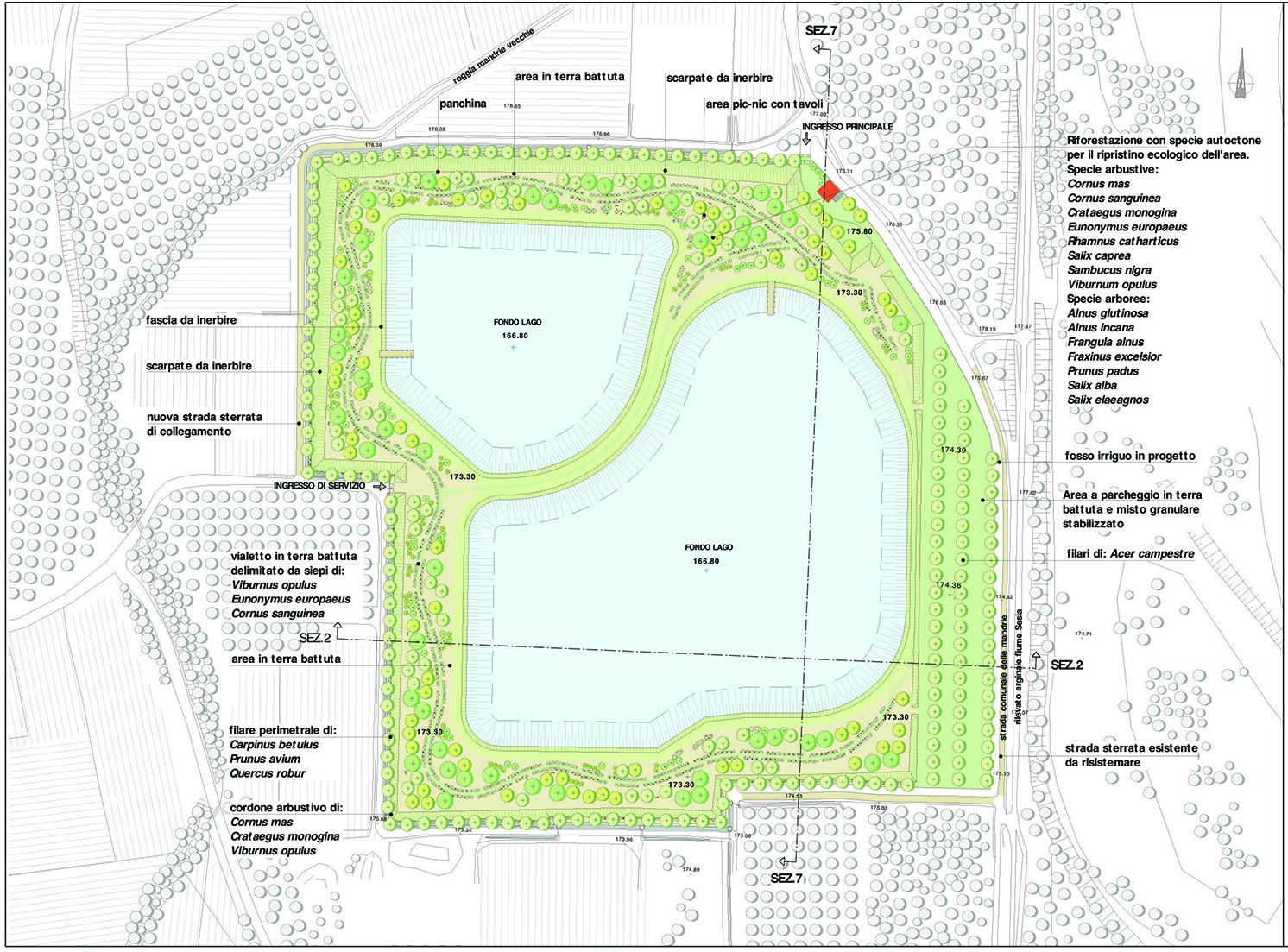
V.I.A. e progetto ripristino ambientale del progetto di una cava in Comune di Arborio (VC)

TIPOLOGIA

Procedura di V.I.A

LUOGO

Piemonte

CLIENTE

Cliente privato

ANNO

2004